一、概述
DW10-10Ⅱ戶外高壓多油斷路器是三相交流50Hz的高壓開關設備,適用于城市或農村額定電壓為10KV的電力系統中,作為電力設備和電力線路的控帛保護之用。本斷路器能可靠分合負荷電流,過載電流及短路電流。
二、結構簡介
斷路器為三相共箱油浸式結構,采用插入式銅鎢觸頭(1型靜頭鑲一片,Ⅱ型靜觸)。箱內裝有一次過電流脫扣器及延時裝置,當網絡出現故障時能自動脫扣。油兼作滅弧和絕緣介質。手力操動機構裝在箱蓋前端與開關聯成一體。導線穿過固一在箱蓋兩側的瓷套管引出。
DW10-10Ⅱ型采用防型瓷套并加大了外絕緣距離;箱蓋與箱體采用全封閉聯接;不需打開箱體即可在機構罩內調整脫扣電流。
三、主要技術參數
額定電壓 |
電高工作電壓 |
額定電流 |
額定斷流容量 |
額定開斷電流 |
極限通過電流以 |
脫扣器動作電流倍數 |
產品重量 |
外型尺寸 |
||
不帶油 |
油重 |
|||||||||
千伏 |
安 |
兆伏安 |
千安 |
有效值 |
峰值 |
公斤 |
毫米 |
|||
10 |
11.5 |
50 |
50 |
3.15 |
4.2 |
8 |
1.2-2 |
96 |
35 |
560x670x760 |
·
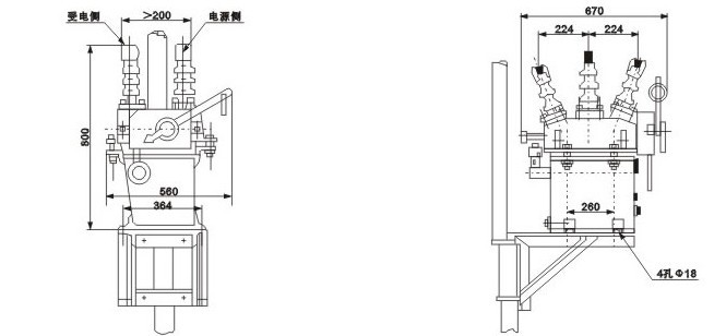
四、外形安裝尺寸

推薦資訊 / Recommended News
- 2022-08-24 持久淺談真空斷路器的理倫
- 2022-08-24 持久淺淡真空斷路器
- 2022-08-24 智能真空斷路器的技術問題解答
- 2022-08-24 ZW32真空斷路器核心作用
- 2022-08-24 真空斷路器比較難處理的問題
- 2022-08-24 高壓真空斷路器的維護安裝
- 2022-07-23 真空斷路器壽命是哪些因素影響的
- 2022-07-23 真空斷路器跳閘次數多有沒有影響
- 2022-07-23 真空斷路器試驗過程中的事項
- 2022-07-23 真空斷路器原則和功能的研究范圍